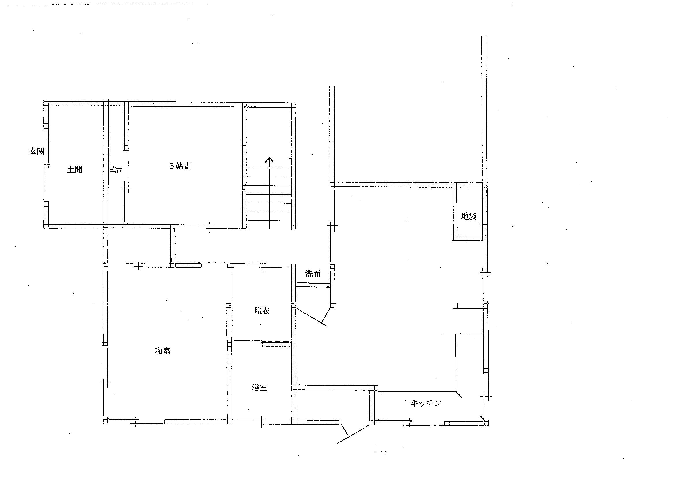
【平面図】改修前後の変化
平面図で分かる主な変更点
- LDK一体化:キッチン6.7坪 + LD5.2坪 = 約12坪の広々空間
- 浴室拡張:0.75坪→1坪ユニットバスで親子入浴も快適
- 脱衣場新設:洗面・洗濯機を集約し家事動線を改善
- 収納充実:パントリー・造作棚で整理整頓をサポート
お孫さんの誕生をきっかけとした2回目のご依頼
今回ご紹介するのは、稲沢市のK様からいただいた2回目の改修工事のご依頼です。お孫さんがお生まれになるということで、「お孫さんと一緒にゆったりとお風呂に入れるようにしたい」というご相談から始まりました。
1回目の工事の際に発見していた白蟻被害の箇所もあり、この機会に隣接する台所と居間も一緒に改修することとなりました。長年のお付き合いだからこそ実現できた、総合的な住環境改善工事です。
【工事前写真】
工事内容の詳細
1. 浴室の拡張と脱衣場の新設
既設のお風呂は0.75坪と狭く、お孫さんと一緒に入るには不十分でした。そこで、1坪タイプのユニットバスを設置するため、足りない寸法分だけ台所側へ拡張してスペースを確保いたしました。
また、もともと洗面は廊下の一部にあり、洗濯機は外に設置されていましたが、新設した1坪の脱衣場に洗面と洗濯機を移設し、動線を大幅に改善いたしました。カンタくん(簡易浴槽)も設置し、機能性を向上させました。
2. 居間・台所をLDKへ一体化
垂れ壁を撤去して居間と台所を一体化し、広々としたLDKを実現いたしました。キッチンはセパレートタイプのシステムキッチンに変更し、機能性と使いやすさを大幅に向上させました。
LDK化のメリット
- ガス台横にダイニングテーブルを設置→出来立て料理をすぐ提供
- 振り返ればシンクがあり片付けも効率的
- 家事動線の短縮で負担軽減
- 開放感のある空間で家族のコミュニケーション向上
3. 白蟻被害の根本解決
1回目の工事の際に発見していた屋根組の梁の白蟻被害についても、この機会に根本的な治療を行いました。長年のお付き合いだからこそ把握できていた問題点を、計画的に解決いたしました。
【工事中写真】
こだわりの収納・機能性向上ポイント
パントリーと多目的収納の充実
勝手口横の土間を活かしてパントリーを新設いたしました。土間部分にはゴミ箱などを置き、上部の可動棚には買い置きをストックできるよう設計しました。
レンジフード背面にはオープンの可動棚を造作し、見せる収納として活用できます。また、ガス台横には調味料置き場を壁に埋め込み、油汚れや乾燥から守りつつ作業効率も向上させました。
多世代に配慮した空間設計
お孫さんの成長を見据えた空間づくりにもこだわりました:
- 窓下カウンター:床に座ってパソコンやタブレットを使える作業スペース
- 神棚下スペース:現在はお孫さんのベビーベッド置き場、将来はマッサージ機も設置可能
- 壁掛けテレビ:カウンター設置でビデオデッキ置き場も確保、下部がスッキリして空間を広く見せる効果
特別仕様のフローリング
床板には、普通のフローリングではありきたりになってしまうため、ラインボーンというフローリングを施工いたしました。独特の美しい木目が空間に上質感をもたらしています。
【完成写真】




生活への配慮と工程管理
住みながら工事への配慮
15日間の工事期間中も、お客様の生活への影響を最小限に抑える工夫を行いました:
補助金を活用したお得な改修工事
今回の改修工事では、各種補助金を有効活用いたしました。サッシ、お風呂、キッチンのすべてに申請を行い、約20万円の補助金を獲得することができました。
補助金活用のメリット
- 工事費用の負担軽減
- 最新設備への更新が経済的に
- 省エネ性能向上による光熱費削減
- 資産価値の向上
※補助金制度は年度や地域により異なります。最新の情報については随時ご相談ください。
お客様のお喜びの声
「想像以上に使いやすく、広く感じ、明るくなった」
– K様より –
完成後、K様からは「想像以上に使いやすく、広く感じ、明るくなった」との嬉しいお言葉をいただきました。
特に以下の点で大きな変化を実感していただけました:
- 空間の広がり:LDK一体化により開放感が大幅に向上
- 明るさの改善:間仕切り撤去により自然光が行き渡る
- 使いやすさ:家事動線の改善と収納の充実
- お孫さんとの時間:広いお風呂でゆったりとした入浴時間
- 機能性向上:脱衣場新設により洗濯・着替えがスムーズに
2回目のご依頼だからこそできた総合改修
長期的な視点での建物管理
今回の工事が成功した大きな要因は、1回目の工事の際に建物の状況を詳しく把握していたことです。白蟻被害などの潜在的な問題を事前に認識していたからこそ、計画的かつ効率的な改修工事が実現できました。
信頼関係が生む最適な提案
K様との長年の信頼関係があったからこそ、単なるお風呂の改修から始まったご相談を、住環境全体の改善につなげることができました。お客様の将来的なニーズも考慮した、総合的な改修提案を行いました。
継続的なお付き合いのメリット
- 建物の状況を詳しく把握→効率的な工事計画
- お客様のライフスタイル理解→最適な提案
- 信頼関係による安心感→大規模工事も安心
- 長期的視点でのメンテナンス→建物の資産価値維持
おわりに
この度は、K様から2回目のご依頼をいただき、誠にありがとうございました。
お孫さんの誕生という喜ばしい出来事を機に、ご家族皆様がより快適に過ごせる住環境づくりのお手伝いができて、私たちも大変嬉しく思っております。LDKの開放感、広いお風呂でのゆったりとした時間、機能的な収納など、すべてがお客様のご期待を上回る仕上がりとなったことを心より喜んでおります。
今後も末永く快適にお過ごしいただけるよう、継続的なサポートをさせていただきます。
LDK改修・水回り工事をお考えの方へ
ライフスタイルの変化に合わせた最適なご提案をいたします
有限会社イトウ建築|補助金活用のご相談も承ります















